Sơ Đồ Bếp 1 Chiều: Nguyên Tắc Bố Trí Và Các Mẫu Bản Vẽ Đạt Chuẩn
16 / 01 / 2026
Sơ đồ bếp 1 chiều chính là chìa khóa giúp giải quyết bài toán tối ưu không gian và nâng cao hiệu quả chế biến cho các bếp ăn công nghiệp. Bằng việc sắp xếp các khu vực chức năng một cách khoa học từ khâu nhập liệu đến khi ra món, hệ thống này giúp loại bỏ các thao tác thừa, đảm bảo tính chuyên nghiệp và hỗ trợ công tác bảo dưỡng thiết bị được thực hiện dễ dàng, chính xác hơn.
Nội dung
- 1 1. Sơ Đồ Bếp 1 Chiều: Nguyên Tắc Bố Trí Và Các Mẫu Bản Vẽ Đạt Chuẩn
- 2 2. Tầm Quan Trọng Của Việc Bảo Trì Thiết Bị Bếp Công Nghiệp Trong Sơ Đồ Một Chiều
- 3 3. Quy Trình Vận Hành Bếp Một Chiều Đảm Bảo Vệ Sinh An Toàn Thực Phẩm
- 4 4. Xem Bản Vẽ Thiết Kế Bếp Một Chiều Cho Nhà Hàng/Trường Học
- 5 5. Hướng Dẫn Bảo Trì Thiết Bị Bếp Và Bảo Dưỡng Bếp Công Nghiệp Định Kỳ
1. Sơ Đồ Bếp 1 Chiều: Nguyên Tắc Bố Trí Và Các Mẫu Bản Vẽ Đạt Chuẩn
Khái niệm bếp 1 chiều hay còn gọi là quy tắc một chiều trong thiết kế bếp công nghiệp là việc sắp xếp các khu vực công năng theo một chuỗi hoạt động khép kín. Mục tiêu cốt lõi của nguyên tắc này là đảm bảo các khâu từ tiếp nhận nguyên liệu, sơ chế, chế biến đến khi ra món và vệ sinh không bao giờ bị chồng chéo hay giao thoa với nhau. Điều này giúp ngăn chặn tuyệt đối tình trạng nhiễm khuẩn chéo giữa thực phẩm sống và thực phẩm chín, một yêu cầu bắt buộc trong áp dụng tiêu chuẩn vệ sinh an toàn thực phẩm vào thiết kế hiện đại.
Việc thực hiện nguyên tắc bếp 1 chiều mang lại hiệu quả kinh tế cực lớn cho doanh nghiệp. Theo các số liệu thực tế từ các dự án mà Nahaki đã triển khai, một khu bếp được bố trí khoa học có thể giúp nhân viên tiết kiệm tới 25% thời gian di chuyển. Nếu tính trên một ca làm việc 8 tiếng, mỗi nhân viên có thể dành thêm hơn 2 tiếng tập trung vào chuyên môn chế biến thay vì lãng phí sức lực vào việc đi lại giữa các khu vực rời rạc. Điều này trực tiếp làm tăng sản lượng món ăn và nâng cao chất lượng phục vụ khách hàng.
1.1. Các khu vực chức năng trong sơ đồ bếp một chiều tiêu chuẩn
Một quy trình bếp 1 chiều hoàn hảo cần bao gồm 6 khu vực chính được sắp xếp theo thứ tự logic. Mỗi khu vực đảm nhận một vai trò riêng biệt nhưng có mối liên kết chặt chẽ với nhau:
- Khu vực tiếp nhận nguyên liệu: Nơi kiểm tra số lượng và chất lượng thực phẩm tươi sống đầu vào.
- Khu vực kho lưu trữ: Bao gồm kho khô, kho lạnh và kho đông để bảo quản thực phẩm ở điều kiện lý tưởng.
- Khu vực sơ chế: Nơi làm sạch, cắt thái và tẩm ướp nguyên liệu trước khi nấu.
- Khu vực chế biến (Bếp nấu): Trung tâm của khu bếp với các thiết bị nấu nướng chuyên dụng.
- Khu vực soạn chia và ra hàng: Nơi trình bày món ăn và chuẩn bị phục vụ thực khách.
- Khu vực rửa và vệ sinh: Nơi thu gom rác thải và làm sạch các dụng cụ ăn uống.
| Khu vực | Thiết bị inox chủ đạo | Tiêu chuẩn kỹ thuật |
|---|---|---|
| Tiếp nhận & Kho | Cân điện tử, kệ inox, tủ đông, tủ mát | Khoảng cách di chuyển ngắn nhất đến cửa nhập hàng |
| Sơ chế | Bàn chậu rửa, bàn chặt, giá nan inox | Bề mặt inox 304 kháng khuẩn, dễ vệ sinh |
| Chế biến | Bếp Á, bếp Âu, lò nướng, hệ thống hút mùi | Công suất nhiệt cao, thoát khí hiệu quả |
| Vệ sinh | Máy rửa bát, bồn rửa 3 hố, bẫy mỡ | Tách biệt hoàn toàn với khu vực ra hàng |
1.2. Tham khảo các mẫu sơ đồ quy trình bếp một chiều chuẩn
Tùy vào diện tích và loại hình kinh doanh mà nhà đầu tư có thể lựa chọn các kiểu bố trí bếp 1 chiều khác nhau. Phổ biến nhất là sơ đồ dạng thẳng (phù hợp bếp nhỏ), dạng chữ L (tối ưu góc tường) hoặc dạng chữ U (cho bếp diện tích lớn). Ví dụ, một sơ đồ bếp ăn trường mầm non thường ưu tiên sự rộng rãi ở khâu sơ chế và soạn chia để đảm bảo vệ sinh tuyệt đối cho các bé. Trong khi đó, bếp nhà hàng lại tập trung vào tốc độ tại khu vực chế biến nóng để phục vụ khách hàng nhanh nhất.

2. Tầm Quan Trọng Của Việc Bảo Trì Thiết Bị Bếp Công Nghiệp Trong Sơ Đồ Một Chiều
Một sai lầm lớn của nhiều chủ đầu tư là chỉ tập trung vào thiết kế ban đầu mà quên mất việc bảo trì thiết bị bếp thường xuyên. Trong một hệ thống vận hành theo chuỗi như bếp một chiều, sự hỏng hóc của bất kỳ thiết bị nào tại một mắt xích đều có thể làm tê liệt toàn bộ quy trình. Hãy tưởng tượng nếu tủ đông tại khu vực kho gặp sự cố, thực phẩm tươi sống sẽ nhanh chóng hư hỏng, kéo theo sự đình trệ tại khu sơ chế và bếp nấu. Điều này không chỉ gây thiệt hại về kinh tế mà còn ảnh hưởng trực tiếp đến uy tín của nhà hàng.
Việc duy trì quy trình bảo trì bếp bài bản giúp thiết bị luôn hoạt động ở trạng thái hiệu suất cao nhất. Theo các báo cáo kinh tế kỹ thuật, chi phí dành cho bảo trì định kỳ chỉ chiếm khoảng 2% đến 5% tổng giá trị thiết bị mỗi năm, nhưng nó giúp giảm thiểu tới 70% các rủi ro hư hỏng đột ngột. Đồng thời, các thiết bị được bảo dưỡng tốt như bếp gas, lò nướng sẽ tiết kiệm được từ 10% đến 15% lượng nhiên liệu tiêu thụ nhờ quá trình vệ sinh đầu đốt và cân chỉnh hệ thống đánh lửa chính xác.
2.1. Lợi ích của việc tuân thủ lịch bảo trì thiết bị inox
Thiết bị inox 304 dù có độ bền cao nhưng trong môi trường bếp đầy muối, axit và nhiệt độ cao, chúng vẫn có thể bị oxy hóa nếu không được chăm sóc. Tuân thủ lịch bảo trì thiết bị inox giúp bề mặt các bàn sơ chế, chậu rửa luôn sáng bóng, không bị rỗ hay xỉn màu. Điều này cực kỳ quan trọng trong việc tạo ấn tượng tốt với các cơ quan kiểm tra vệ sinh an toàn thực phẩm. Một khu bếp sạch sẽ, thiết bị inox sáng choang là minh chứng rõ nhất cho sự chuyên nghiệp của đơn vị quản lý.
2.2. Tính toán hiệu quả kinh tế khi đầu tư vào bảo trì
Hãy cùng Nahaki làm một phép tính nhỏ về chi phí cho một thiết bị tủ lạnh công nghiệp trị giá 30 triệu đồng trong vòng 5 năm:
- Trường hợp 1: Không bảo trì. Thiết bị có nguy cơ hỏng lốc máy ở năm thứ 3 do bụi bẩn bám dày ở dàn nóng. Chi phí thay lốc và nạp gas khoảng 8 triệu đồng, chưa kể thực phẩm trong tủ bị hỏng gây thiệt hại thêm 5 triệu đồng. Tổng chi phí phát sinh là 13 triệu đồng.
- Trường hợp 2: Có bảo trì định kỳ. Chi phí 500.000 đồng/năm. Tổng chi phí sau 5 năm là 2.5 triệu đồng. Thiết bị chạy ổn định, tiết kiệm điện và bền bỉ.
Như vậy, việc bảo dưỡng bếp công nghiệp giúp bạn tiết kiệm được hơn 10 triệu đồng và sự an tâm tuyệt đối trong vận hành.
3. Quy Trình Vận Hành Bếp Một Chiều Đảm Bảo Vệ Sinh An Toàn Thực Phẩm

Để sơ đồ bếp 1 chiều phát huy tối đa công năng, quy trình vận hành phải được chuẩn hóa đến từng chi tiết nhỏ. Mỗi nhân viên trong bếp cần nắm vững vị trí làm việc và giới hạn khu vực của mình để tránh việc di chuyển ngược chiều. Việc ghi chép sổ nhật ký vận hành hàng ngày là một phần không thể thiếu trong quy trình bếp 1 chiều đạt chuẩn. Sổ này ghi lại các thông số về nhiệt độ tủ lạnh, thời gian vệ sinh các thiết bị và tình trạng hoạt động của hệ thống hút mùi, xử lý nước thải.
Nahaki hướng dẫn các bước vận hành cơ bản theo nguyên tắc 5S và một chiều để đảm bảo thực phẩm luôn tươi ngon và an toàn:
- Kiểm tra hệ thống: Trước ca làm việc, nhân viên kỹ thuật hoặc bếp trưởng kiểm tra tình trạng bảo trì thiết bị bếp, đảm bảo các vòi nước, bếp gas và máy hút mùi hoạt động tốt.
- Tiếp nhận và Phân loại: Thực phẩm nhập về được phân loại ngay tại khu giao nhận, loại bỏ bao bì bẩn trước khi đưa vào kho lưu trữ.
- Sơ chế tách biệt: Rau củ, thịt cá được sơ chế tại các bồn rửa riêng biệt để tránh nhiễm khuẩn.
- Chế biến chuyên nghiệp: Thức ăn được nấu chín và chuyển ngay sang khu vực giữ nóng để chuẩn bị soạn chia.
- Vệ sinh cuối ca: Toàn bộ thiết bị inox và sàn bếp được làm sạch bằng dung dịch khử trùng chuyên dụng.
3.1. Áp dụng tiêu chuẩn vệ sinh an toàn thực phẩm vào thiết kế
Việc áp dụng tiêu chuẩn vệ sinh an toàn thực phẩm vào thiết kế đòi hỏi sự hiểu biết sâu sắc về các văn bản pháp luật như Thông tư 30/2012/TT-BYT. Các góc tường trong khu bếp nên được bo tròn để tránh tích tụ bụi bẩn, hệ thống thoát nước phải có bẫy mỡ ngăn tắc nghẽn và mùi hôi. Ngoài ra, trần bếp nên sử dụng vật liệu không bám bụi, phẳng và dễ lau chùi để ngăn chặn việc rơi rớt dị vật vào thức ăn trong quá trình chế biến.
3.2. Kiểm soát luồng rác thải và dụng cụ bẩn
Trong một sơ đồ bếp 1 chiều đúng nghĩa, đường đi của rác thải và dụng cụ bẩn sau khi thực khách ăn xong phải tách biệt hoàn toàn với đường đi của thức ăn chín. Khu vực rửa bát cần được đặt ở cuối quy trình nhưng phải có lối tiếp cận riêng để chuyển đồ bẩn vào mà không đi ngang qua khu nấu nướng. Điều này đảm bảo không gian bếp luôn thơm tho và sạch sẽ, tạo môi trường làm việc tích cực cho đội ngũ đầu bếp.
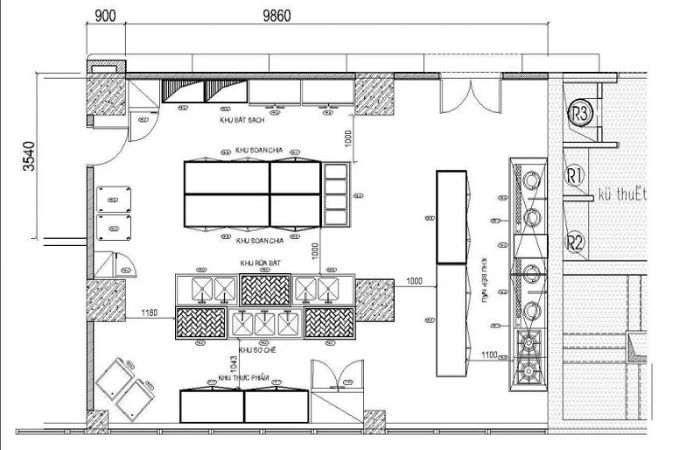
4. Xem Bản Vẽ Thiết Kế Bếp Một Chiều Cho Nhà Hàng/Trường Học
Sự khác biệt trong việc thiết kế bếp một chiều cho nhà hàng/trường học nằm ở công năng và đối tượng phục vụ. Đối với nhà hàng, sự đa dạng của thực đơn yêu cầu khu vực bếp nấu phải linh hoạt với nhiều loại bếp khác nhau như bếp Á, bếp Âu, bếp chiên nhúng. Ngược lại, sơ đồ bếp ăn trường mầm non thường tập trung vào các thiết bị nấu số lượng lớn như tủ nấu cơm, nồi ninh xương dung tích lớn và khu chia suất ăn phải cực kỳ sạch sẽ để bảo vệ hệ miễn dịch non nớt của trẻ em.
Nahaki cung cấp dịch vụ tư vấn xem bản vẽ thiết kế bếp một chiều chuyên sâu, đảm bảo mọi chi tiết từ vị trí ổ cắm điện đến độ dốc của sàn nhà đều đạt tiêu chuẩn kỹ thuật quốc tế. Chúng tôi sử dụng phần mềm 3D hiện đại để mô phỏng luồng di chuyển, giúp chủ đầu tư hình dung rõ nét về hoạt động của bếp trước khi tiến hành thi công thực tế. Việc tối ưu hóa ngay từ khâu bản vẽ giúp tiết kiệm chi phí sửa chữa và thay đổi sau này lên tới hàng trăm triệu đồng.

4.1. Đặc điểm riêng biệt của sơ đồ bếp ăn trường mầm non
Khi thiết lập sơ đồ bếp ăn trường mầm non, an toàn là yếu tố đặt lên hàng đầu. Các thiết bị inox phải được bo tròn góc cạnh để tránh va chạm gây thương tích. Hệ thống gas công nghiệp cần có thiết bị báo rò rỉ và ngắt tự động. Ngoài ra, chiều cao của các bàn soạn chia cần được tính toán phù hợp với nhân viên nuôi dưỡng để họ thao tác thoải mái nhất. Việc duy trì bảo trì thiết bị bếp tại các trường học cũng thường gắt gao hơn với các đợt kiểm tra định kỳ từ cơ quan y tế địa phương.
4.2. Tối ưu hóa không gian cho bếp nhà hàng diện tích nhỏ
Với những nhà hàng tại các thành phố lớn có diện tích hạn chế, việc bố trí bếp 1 chiều đòi hỏi sự sáng tạo vượt bậc. Nahaki thường tư vấn sử dụng các thiết bị đa năng như lò hấp nướng kết hợp để thay thế cho nhiều loại bếp rời. Các giá kệ inox cao tầng được tận dụng tối đa để lưu trữ đồ đạc trên không trung, giải phóng diện tích mặt sàn cho lối đi. Dù diện tích nhỏ đến đâu, chúng tôi vẫn cam kết giữ đúng nguyên tắc bếp 1 chiều để đảm bảo chất lượng món ăn cao nhất.
5. Hướng Dẫn Bảo Trì Thiết Bị Bếp Và Bảo Dưỡng Bếp Công Nghiệp Định Kỳ
Để hệ thống bếp luôn vận hành trơn tru, doanh nghiệp cần xây dựng một quy trình bảo trì bếp chi tiết cho từng loại thiết bị. Việc này bắt đầu từ khâu đào tạo nhân viên bếp biết cách vệ sinh máy móc hàng ngày sau khi sử dụng đến việc phối hợp với các đơn vị chuyên nghiệp như Nahaki để thực hiện các nghiệp vụ kỹ thuật chuyên sâu. Một lịch bảo trì thiết bị inox rõ ràng sẽ giúp chủ đầu tư kiểm soát được chi phí và tình trạng tài sản của mình một cách minh bạch nhất.
Dưới đây là các bước trong quy trình bảo dưỡng bếp công nghiệp tiêu chuẩn mà Nahaki đang áp dụng cho hàng trăm đối tác trên toàn quốc:
- Kiểm tra tổng thể: Đánh giá tiếng ồn, nhiệt độ và hiệu suất làm việc của máy.
- Vệ sinh chuyên sâu: Làm sạch các bộ phận bên trong mà nhân viên bếp không thể tự làm như dàn nóng máy lạnh, đầu đốt bếp gas, bộ lọc dầu mỡ.
- Cân chỉnh kỹ thuật: Kiểm tra áp suất gas, dòng điện điện tử, độ căng của dây curoa (nếu có).
- Thay thế linh kiện tiêu hao: Thay gioăng cao su tủ nấu cơm, thanh nhiệt bị bám cặn vôi, lọc nước cho máy làm đá.
- Bàn giao và Hướng dẫn: Ghi chép kết quả vào phiếu bảo trì và hướng dẫn nhân viên cách vận hành tối ưu hơn.
| Hạng mục kiểm tra | Tần suất khuyến nghị | Lưu ý kỹ thuật |
|---|---|---|
| Hệ thống gas | Hàng tháng | Thử kín bằng xà phòng các đầu nối van |
| Hệ thống hút mùi | 3 tháng / lần | Vệ sinh cánh quạt và thay dầu máy nếu cần |
| Bẫy mỡ và thoát nước | Hàng tuần | Dọn sạch rác thải rắn để tránh tắc nghẽn |
| Thiết bị lạnh | 6 tháng / lần | Vệ sinh bụi bẩn dàn nóng để tản nhiệt tốt |
Nhìn chung, việc đầu tư vào sơ đồ bếp 1 chiều và duy trì công tác bảo trì thiết bị bếp định kỳ là chiến lược thông minh cho bất kỳ đơn vị kinh doanh ẩm thực nào. Nó không chỉ giúp bạn tuân thủ pháp luật về vệ sinh an toàn thực phẩm mà còn tạo ra một môi trường làm việc hiệu quả, tiết kiệm và chuyên nghiệp. Nahaki luôn sẵn sàng đồng hành cùng quý khách trên con đường xây dựng những khu bếp mẫu mực, bền bỉ cùng thời gian.
NAHAKI | CÔNG TY CỔ PHẦN THIẾT BỊ INOX HƯNG VƯỢNG
🏢 Địa chỉ – Chi nhánh miền Bắc: OV4.4 KĐT Xuân Phương, P. Xuân Phương, Q. Nam Từ Liêm, TP. Hà Nội
🏢 Chi nhánh miền Trung: Khu đô thị Sao Mai, Ngã tư phố Đà, Triệu Sơn, Thanh Hóa
🏢 Chi nhánh TP. Hồ Chí Minh: 204/3 Tổ 1, KP 1, P. Tân Chánh Hiệp, Q. 12, TP. HCM
☎️ Điện thoại: 024.6686.1448
📞 Hotline: 098.651.9922
💬 Email: admin@NAHAKI.com.vn
🌐 Fanpage: NAHAKI – Thiết Bị Bếp Inox Công Nghiệp. Chất Lượng Làm Nên Thương Hiệu
Tin tức liên quan
Địa Chỉ Cung Cấp Bếp Từ Công Nghiệp Uy Tín Tại Hải Phòng
Bếp từ công nghiệp Hải Phòng là giải pháp nấu nướng hiện đại giúp các nhà hàng tối ưu chi phí và đảm bảo an toàn cháy nổ tuyệt...
Địa chỉ mua bếp công nghiệp tin cậy tại Quảng Ninh
Quảng Ninh là địa phương phát triển du lịch cùng với công nghiệp khai thác và chế biến khoáng sản. Đây là điều kiện để cho tỉnh phát triển...
10+ Xưởng Gia Công Inox Hà Nội “Uy Tín & Giá Tốt” Nhất Hiện Nay
Xu hướng sử dụng các sản phẩm inox ngày càng cao nên việc lựa chọn xưởng gia công inox được nhiều người quan tâm. Cùng Nahaki điểm qua 10+...
Tủ Cơm Công Nghiệp Hải Phòng – Địa Chỉ Mua Tủ Điện Và Tủ Gas
Ở Hải Phòng, mỗi ngày các nhà bếp cần phục vụ ít nhất trên 100 suất ăn, liệu có giải pháp nào tối ưu giúp họ đỡ mỏi mệt...








