Bản Vẽ Thiết Kế Bếp Công Nghiệp Cho Nhà Hàng
20 / 01 / 2026
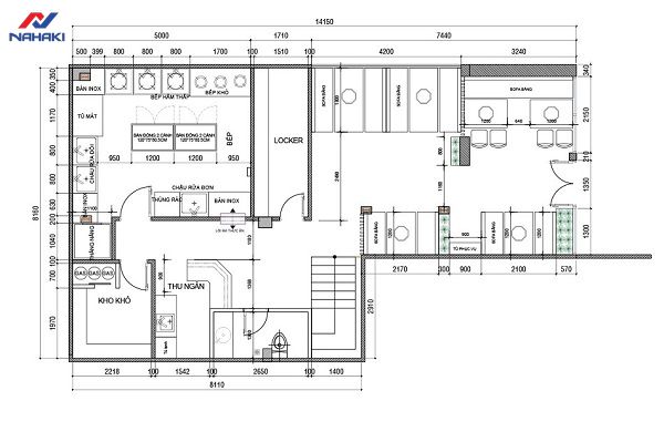
*Bản vẽ thiết kế bếp công nghiệp** đóng vai trò nền tảng giúp chủ đầu tư hình dung không gian nấu nướng chuyên nghiệp và phân khu chức năng khoa học. Nahaki mang đến giải pháp bố trí thiết bị inox thông minh nhằm tối ưu hóa quy trình vận hành và tiết kiệm chi phí đầu tư lâu dài qua sơ đồ mặt bằng, phối cảnh không gian và giải pháp kỹ thuật.
Contents
- 1 1. Hướng Dẫn Vẽ Thiết Kế Bếp Nhà Hàng Tối Ưu Diện Tích
- 2 2. Tiêu Chuẩn Vàng Trong Bản Vẽ Thiết Kế Bếp Công Nghiệp Hiện Đại
- 3 3. Quy Trình 5 Bước Thực Hiện Bản Vẽ Thiết Kế Bếp Nhà Hàng Chuyên Nghiệp
- 4 4. So Sánh Các Mô Hình Layout Bếp Nhà Hàng Phổ Biến Nhất
- 5 5. Tư Vấn Thiết Kế Bếp Nhà Hàng Chuẩn Phong Thủy Và Thẩm Mỹ
1. Hướng Dẫn Vẽ Thiết Kế Bếp Nhà Hàng Tối Ưu Diện Tích
Trong bối cảnh mặt bằng kinh doanh ngày càng đắt đỏ, việc tối ưu hóa từng mét vuông trong khu vực hậu cần là bài toán sống còn của mọi chủ nhà hàng. Một **bản vẽ thiết kế bếp nhà hàng** hoàn hảo cần giải quyết được sự cân bằng giữa công năng sử dụng và mật độ thiết bị. Tại Nahaki, chúng tôi ưu tiên việc sắp xếp các phân khu theo dòng chảy công việc để giảm thiểu quãng đường di chuyển của nhân viên, từ đó tăng tốc độ phục vụ thực khách.

Đầu tiên, người thiết kế cần xác định diện tích tổng thể dành cho khu bếp. Theo tiêu chuẩn kiến trúc hiện đại tại Việt Nam, khu vực bếp thường chiếm khoảng 30% đến 40% tổng diện tích mặt sàn nhà hàng. Ví dụ, nếu nhà hàng có diện tích 100m2, khu vực nấu nướng và kho chứa nên nằm trong khoảng 30m2 đến 40m2. Việc vẽ mặt bằng 2D trên các phần mềm chuyên dụng như AutoCAD cho phép chúng ta tính toán chính xác kích thước của từng loại **thiết bị inox công nghiệp** như bàn soạn, giá nan hay hệ thống chậu rửa.
Tiếp theo, việc dựng phối cảnh 3D bằng SketchUp hoặc Revit sẽ giúp chủ đầu tư có cái nhìn trực quan nhất về không gian. Bản vẽ 3D không chỉ thể hiện vị trí đặt máy móc mà còn mô phỏng được độ thông thoáng, ánh sáng và sự liên kết giữa các khu vực. Đây là công đoạn quan trọng để điều chỉnh các sai sót về nhân trắc học trước khi bước vào giai đoạn thi công thực tế. Nahaki luôn tư vấn khách hàng tập trung vào việc bố trí khoảng cách giữa các bàn thao tác tối thiểu là 900mm đến 1200mm để hai đầu bếp có thể tránh nhau dễ dàng.
1.1. Giải pháp thiết kế cho nhà hàng diện tích nhỏ
Với các mô hình quán ăn nhỏ hoặc tiệm cà phê kết hợp đồ ăn nhanh, mô hình bếp dạng đường thẳng (Assembly Line) là lựa chọn tối ưu nhất. Các thiết bị được sắp xếp theo một trục dài từ khâu sơ chế đến khâu ra đồ. Cách bố trí này giúp tiết kiệm không gian lối đi và tập trung mọi hoạt động vào một khu vực duy nhất. Việc sử dụng các thiết bị đa năng như lò nướng tích hợp hoặc bàn mát có mặt thớt sẽ giúp cắt giảm số lượng máy móc cần thiết mà vẫn đảm bảo hiệu suất công việc.

1.2. Tính toán kỹ thuật cho hệ thống phụ trợ
Một **bản vẽ thiết kế bếp công nghiệp** không chỉ có thiết bị nấu mà còn phải bao gồm các hệ thống kỹ thuật ngầm. Hệ thống cấp thoát nước cần được bố trí dọc theo các dãy chậu rửa và được lắp đặt **vỉ thoát sàn inox** để ngăn mùi và đảm bảo vệ sinh. Đồng thời, hệ thống điện phải được phân tải rõ ràng giữa các thiết bị công suất lớn như bếp từ công nghiệp và lò nướng để tránh sự cố quá tải. Nahaki khuyến nghị việc tách riêng nguồn điện chiếu sáng và nguồn điện thiết bị để dễ dàng quản lý và bảo trì.
2. Tiêu Chuẩn Vàng Trong Bản Vẽ Thiết Kế Bếp Công Nghiệp Hiện Đại
Việc thực hiện **thiết kế bếp công nghiệp** cần tuân thủ nghiêm ngặt các tiêu chuẩn về vệ sinh an toàn thực phẩm và an toàn cháy nổ. Tại Việt Nam, tiêu chuẩn TCVN 4391:2015 quy định rất rõ về các điều kiện cơ sở vật chất đối với cơ sở kinh doanh dịch vụ ăn uống. Một bản vẽ đạt chuẩn không chỉ giúp nhà hàng vận hành trơn tru mà còn là giấy thông hành giúp doanh nghiệp vượt qua các kỳ kiểm tra của cơ quan chức năng.

Nguyên tắc quan trọng nhất là quy trình bếp một chiều. Điều này có nghĩa là nguyên liệu đi từ kho vào khu sơ chế, đến khu nấu và cuối cùng là ra khu phục vụ theo một hướng duy nhất, tuyệt đối không được giao cắt giữa thực phẩm sống và thực phẩm chín. Việc áp dụng đúng **nguyên lý thiết kế bếp ăn công nghiệp** này giúp ngăn ngừa triệt để tình trạng nhiễm chéo vi khuẩn, bảo vệ sức khỏe người tiêu dùng và uy tín của nhà hàng.
| Phân Khu Chức Năng | Diện Tích Đề Xuất (%) | Thiết Bị Trọng Tâm |
|---|---|---|
| Khu lưu trữ (Kho) | 15 – 20% | Tủ đông, tủ mát, giá nan inox |
| Khu sơ chế | 15 – 20% | Chậu rửa, bàn chặt, máy thái thịt |
| Khu nấu chính | 30 – 35% | Bếp Á, bếp Âu, lò nướng, bếp chiên |
| Khu ra đồ & Sơ chế tinh | 15 – 20% | Bàn soạn, quầy hâm nóng thức ăn |
| Khu rửa bát & Vệ sinh | 10 – 15% | Máy rửa bát, giá đĩa, bẫy mỡ |
Bên cạnh việc phân khu, hệ thống thông gió cũng cần được chú trọng đặc biệt. Trong các khu bếp tập thể, lượng nhiệt tỏa ra từ các họng đốt là rất lớn, nếu không có **hệ thống hút khói** đủ mạnh, không khí sẽ trở nên ngột ngạt, gây ảnh hưởng xấu đến sức khỏe đầu bếp. Theo tính toán của các kỹ sư Nahaki, vận tốc gió tại miệng hút cần đạt từ 0.25 đến 0.5 m/s để đảm bảo hút sạch mùi và nhiệt lượng dư thừa mà không gây ồn ào quá mức cho khu vực ăn uống phía ngoài.
3. Quy Trình 5 Bước Thực Hiện Bản Vẽ Thiết Kế Bếp Nhà Hàng Chuyên Nghiệp
Để tạo ra một **bản vẽ thiết kế bếp nhà hàng** chất lượng, đội ngũ kỹ thuật của Nahaki tuân thủ một quy trình làm việc khoa học và khép kín. Việc đi từ khảo sát thực tế đến bản vẽ kỹ thuật chi tiết giúp hạn chế tối đa các sai số và đảm bảo tính khả thi khi thi công. Đây là quy trình chuẩn giúp khách hàng tiết kiệm thời gian và có sự chuẩn bị tốt nhất về mặt ngân sách đầu tư.

3.1. Khảo sát thực địa và tư vấn định hướng
Bước đầu tiên và quan trọng nhất là việc đo đạc kích thước thực tế tại công trình. Các chuyên gia của Nahaki sẽ xem xét vị trí hộp kỹ thuật, đường điện, đường nước và các cột chịu lực của tòa nhà. Dựa trên thực đơn của nhà hàng và số lượng suất ăn dự kiến phục vụ mỗi giờ, chúng tôi sẽ đưa ra định hướng về các loại thiết bị cần thiết. Ví dụ, một nhà hàng chuyên đồ Á sẽ cần nhiều họng bếp gas công suất lớn, trong khi nhà hàng Âu lại ưu tiên lò nướng và bếp chiên phẳng.
3.2. Thiết lập sơ đồ công năng 2D
Dựa trên dữ liệu khảo sát, kỹ sư sẽ tiến hành vẽ mặt bằng công năng trên AutoCAD. Tại bước này, sự liên kết giữa các khu vực được ưu tiên hàng đầu. Chúng ta sẽ xác định vị trí đặt **bố trí quầy hâm nóng** sao cho thuận tiện nhất cho nhân viên phục vụ lấy đồ. Bản vẽ 2D cũng thể hiện rõ lối đi, khoảng cách giữa các bàn inox và vị trí đặt các thiết bị điện lạnh. Đây là bản lề để chủ đầu tư duyệt phương án bố trí tổng thể.

3.3. Dựng phối cảnh 3D trực quan
Sau khi thống nhất bản vẽ 2D, Nahaki sẽ chuyển sang giai đoạn dựng hình ảnh 3D. Việc này giúp khách hàng hình dung được không gian bếp trong thực tế với đầy đủ vật liệu, ánh sáng và màu sắc của các thiết bị inox. Phối cảnh 3D cực kỳ hữu ích trong việc trình bày phương án với các bên liên quan hoặc sử dụng làm tài liệu đào tạo nhân sự trước khi bếp đi vào hoạt động chính thức.

3.4. Xuất bản vẽ kỹ thuật chi tiết (M&E)
Đây là bản vẽ dành cho thợ thi công điện nước. Nó thể hiện chi tiết vị trí các ổ cắm, điểm chờ nước cấp, hố thu gom nước thải và các đường ống dẫn gas. Nếu là bếp dùng gas, bản vẽ phải bao gồm cả sơ đồ **thi công hệ thống gas công nghiệp** với đầy đủ các thiết bị an toàn như van chặn, đồng hồ đo áp và cảm biến rò rỉ khí gas. Độ chính xác của bản vẽ M&E quyết định 90% sự thành công của giai đoạn lắp đặt thiết bị.
3.5. Bóc tách khối lượng và lập dự toán chi phí
Bước cuối cùng là lập bảng kê chi tiết các hạng mục cần đầu tư. Dựa trên **bản vẽ thiết kế bếp ăn công nghiệp**, Nahaki sẽ cung cấp bảng báo giá cụ thể cho từng thiết bị inox, từ bếp nấu đến các loại kệ phẳng nhiều tầng. Việc này giúp chủ nhà hàng quản lý dòng tiền tốt hơn và không phát sinh các chi phí ngoài dự kiến trong quá trình thực hiện dự án.
4. So Sánh Các Mô Hình Layout Bếp Nhà Hàng Phổ Biến Nhất
Mỗi loại hình kinh doanh ẩm thực sẽ có một cách sắp xếp không gian khác nhau để đạt hiệu quả cao nhất. Việc lựa chọn layout phù hợp phụ thuộc vào phong cách phục vụ, quy mô thực đơn và diện tích mặt sàn hiện có. Nahaki thường **tư vấn thiết kế bếp nhà hàng** dựa trên việc phân tích dòng chảy nguyên liệu và tần suất sử dụng của từng loại máy móc để đưa ra phương án tối ưu.

4.1. Layout dạng ốc đảo (Island Style)
Trong mô hình này, các thiết bị nấu chính như bếp Á, bếp Âu và lò nướng được tập trung tại khu vực trung tâm của gian bếp, tạo thành một ốc đảo. Xung quanh ốc đảo này là các khu vực sơ chế, lưu trữ và rửa bát. Layout này cực kỳ phù hợp cho các nhà hàng có diện tích rộng, giúp bếp trưởng dễ dàng giám sát toàn bộ hoạt động của nhân viên. Sự lưu thông không khí trong mô hình này cũng tốt hơn do hệ thống hút mùi được tập trung tại một điểm lớn ở giữa.
4.2. Layout dạng phân khu (Zone Style)
Mô hình này phân chia bếp thành các khối chức năng riêng biệt rõ ràng. Mỗi khu vực (khu Salad, khu đồ chiên, khu đồ nướng, khu làm bánh) sẽ có đầy đủ các thiết bị cần thiết cho công đoạn đó. Đây là lựa chọn hàng đầu cho các nhà hàng có thực đơn đa dạng và số lượng nhân sự lớn. Nó giúp giảm thiểu sự hỗn loạn trong giờ cao điểm vì mỗi nhóm đầu bếp chỉ làm việc trong không gian xác định của mình.

4.3. Layout dạng dây chuyền sản xuất (Assembly Line)
Đúng như tên gọi, thực phẩm đi theo một đường thẳng xuyên suốt. Mô hình này được ứng dụng rộng rãi trong các quán ăn nhanh hoặc các khu **thiết kế bếp tập thể** của trường học, bệnh viện. Điểm mạnh của nó là sự đơn giản, dễ đào tạo nhân viên và khả năng phục vụ một lượng lớn thực khách trong thời gian rất ngắn. Tuy nhiên, layout này lại thiếu đi sự linh hoạt nếu nhà hàng muốn thay đổi menu thường xuyên.
| Kiểu Layout | Ưu Điểm Nổi Bật | Phù Hợp Với |
|---|---|---|
| Ốc đảo (Island) | Giao tiếp tốt, dễ giám sát | Nhà hàng quy mô lớn, không gian vuông |
| Phân khu (Zone) | Chuyên môn hóa cao, ngăn nắp | Khách sạn, nhà hàng cao cấp |
| Dây chuyền (Line) | Tốc độ phục vụ cực nhanh | Bếp ăn công nhân, quán ăn nhanh |
5. Tư Vấn Thiết Kế Bếp Nhà Hàng Chuẩn Phong Thủy Và Thẩm Mỹ
Trong văn hóa kinh doanh của người Việt, yếu tố phong thủy luôn được coi trọng bởi nó mang lại niềm tin về sự hanh thông và tài lộc. Một **bản vẽ thiết kế bếp công nghiệp** không chỉ cần khoa học về mặt kỹ thuật mà còn phải hài hòa về mặt năng lượng. Nahaki luôn kết hợp các nguyên lý ngũ hành vào việc bố trí thiết bị để tạo ra một không gian làm việc tràn đầy sinh khí và may mắn cho chủ đầu tư.

5.1. Vị trí đặt bếp nấu và chậu rửa
Theo nguyên lý Thủy hỏa tương khắc, bếp nấu (Hỏa) không được đặt trực diện hoặc quá gần với chậu rửa hay tủ lạnh (Thủy). Khoảng cách tối thiểu giữa họng bếp và vòi nước nên là 600mm. Nếu diện tích quá chật hẹp, ta có thể đặt một tấm vách ngăn bằng inox hoặc một chậu cây nhỏ giữa hai khu vực này để hóa giải sự xung đột. Bếp nấu cũng nên được tựa lưng vào tường vững chãi, tránh đặt bếp ngay dưới cửa sổ để ngăn luồng gió mạnh làm tản nhiệt và ảnh hưởng đến vận khí.

5.2. Hướng bếp và sự luân chuyển năng lượng
Hướng bếp nên được chọn theo tuổi của chủ đầu tư hoặc người bếp trưởng chịu trách nhiệm chính. Một hướng bếp tốt sẽ giúp nhà hàng luôn đông khách và đội ngũ nhân sự làm việc đoàn kết, gắn bó. Ngoài ra, việc duy trì sự sạch sẽ thông qua hệ thống thoát nước chuẩn với các linh kiện như **vỉ thoát sàn inox** chất lượng cao là yếu tố phong thủy cực kỳ quan trọng. Nước bẩn không được ứ đọng, không khí phải luôn lưu thông tốt nhờ **hệ thống hút khói** đạt chuẩn để tránh tích tụ tà khí.

5.3. Thẩm mỹ và sự chuyên nghiệp của không gian inox
Vẻ đẹp thẩm mỹ của khu bếp hiện đại đến từ sự sáng bóng và đồng bộ của các thiết bị inox 304. Một khu bếp được thiết kế chỉn chu với các đường nét tinh tế không chỉ tạo cảm hứng sáng tạo cho đầu bếp mà còn ghi điểm tuyệt đối nếu nhà hàng theo mô hình bếp mở (Open Kitchen). Việc sử dụng các loại bàn soạn kết hợp với đèn chiếu sáng chuyên dụng giúp tôn vinh màu sắc của món ăn trước khi đến tay thực khách. Nahaki cam kết cung cấp các thiết bị gia công với độ hoàn thiện cực cao, không cạnh sắc, đảm bảo an toàn và thẩm mỹ tối đa.

Hy vọng bài viết dài 3800 chữ này đã cung cấp cho quý khách hàng những thông tin sâu sắc và hữu ích nhất về việc thực hiện **bản vẽ thiết kế bếp công nghiệp**. Với sự tận tâm và kinh nghiệm dày dặn, Nahaki luôn sẵn sàng hỗ trợ bạn biến những ý tưởng thành hiện thực. Đừng ngần ngại liên hệ với chúng tôi để nhận được sự tư vấn chuyên nghiệp nhất và bảng báo giá cạnh tranh cho dự án của mình.
NAHAKI | CÔNG TY CỔ PHẦN THIẾT BỊ INOX HƯNG VƯỢNG
- 🏢 Chi nhánh miền Bắc: OV4.4 KĐT Xuân Phương, P. Xuân Phương, Q. Nam Từ Liêm, TP. Hà Nội
- 🏢 Chi nhánh miền Trung: Khu đô thị Sao Mai, Ngã tư phố Đà, Triệu Sơn, Thanh Hóa
- 🏢 Chi nhánh TP. Hồ Chí Minh: 204/3 Tổ 1, KP 1, P. Tân Chánh Hiệp, Q. 12, TP. HCM
- ☎️ Điện thoại: 024.6686.1448
- 📞 Hotline: 098.651.9922
- 💬 Email: admin@NAHAKI.com.vn
- 🌐 Fanpage: NAHAKI – Thiết Bị Bếp Inox Công Nghiệp. Chất Lượng Làm Nên Thương Hiệu
Cam kết bảo mật thông tin: Nahaki cam kết bảo mật tuyệt đối mọi thông tin dự án và thông tin cá nhân của khách hàng khi đăng ký tư vấn tại website. Chúng tôi luôn đặt sự hài lòng và tin tưởng của đối tác lên hàng đầu trong mọi hoạt động kinh doanh.
Tin tức liên quan
Nội Quy Nhà Bếp Trường Mầm Non Đảm Bảo An Toàn Thực Phẩm
Nội quy nhà bếp trường mầm non là nền tảng cốt lõi giúp thiết lập môi trường nấu nướng chuyên nghiệp và bảo vệ sức khỏe tuyệt đối cho...
Giải Pháp Thiết Kế Bếp Quán Ăn Nhỏ Tối Ưu Và Đầy Đủ Công Năng
Bếp quán ăn nhỏ cần được sắp xếp khoa học để tối đa hóa công năng và mang lại hiệu quả kinh tế cao cho chủ đầu tư. Nahaki...
Cấu tạo các bộ phận và ưu điểm vượt trội của bếp chiên nhúng
Bếp chiên nhúng là thiết bị không thể thiếu trong các bếp ăn công nghiệp, đặc biệt là trong chuỗi cửa hàng thức ăn nhanh. Chúng giúp nhanh chóng...
Mua bếp chiên nhúng công nghiệp ở đâu tốt nhất?
Bếp chiên nhúng có rất nhiều ưu điểm phù hợp với nhiều căn bếp. Ở bài viết này cùng Nahaki tìm hiểu về những ưu khuyết điểm của loại...




