Dịch Vụ Thiết Kế Bếp Nhà Hàng Chuyên Nghiệp Tại Nahaki
21 / 01 / 2026
Dịch vụ thiết kế bếp nhà hàng mang đến giải pháp không gian ẩm thực tối ưu giúp vận hành hiệu quả và tiết kiệm chi phí do Nahaki cung cấp. Chúng tôi tự hào đồng hành cùng các chủ đầu tư kiến tạo khu vực nấu nướng đạt chuẩn vệ sinh an toàn thực phẩm thông qua quy trình thiết kế bài bản và đơn giá thiết kế bếp cạnh tranh. Tư vấn thiết kế bếp, quy trình thiết kế, thiết kế bếp công nghiệp chuyên sâu.
Contents
- 1 1. Dịch Vụ Tư Vấn Thiết Kế Bếp Nhà Hàng Chuyên Nghiệp Uy Tín
- 2 2. Tại Sao Nên Sử Dụng Dịch Vụ Thiết Kế Trước Khi Thi Công Bếp
- 3 3. Quy Trình Thiết Kế Bếp Nhà Hàng Tiêu Chuẩn Tại Nahaki
- 4 4. Các Hạng Mục Chi Tiết Trong Bộ Hồ Sơ Thiết Kế Bếp
- 5 5. Báo Giá Phí Thiết Kế Bếp Nhà Hàng Và Chính Sách Ưu Đãi
- 6 6. Tiêu Chí Lựa Chọn Công Ty Thiết Kế Bếp Nhà Hàng Uy Tín
- 7 7. Cam Kết Của Nahaki Về Công Năng Và Thẩm Mỹ Công Trình
1. Dịch Vụ Tư Vấn Thiết Kế Bếp Nhà Hàng Chuyên Nghiệp Uy Tín
Trong bối cảnh ngành F&B tại Việt Nam đang cạnh tranh gay gắt, việc sở hữu một khu bếp khoa học không chỉ là yêu cầu về kỹ thuật mà còn là chiến lược kinh doanh sống còn. Dịch vụ thiết kế bếp nhà hàng chuyên nghiệp giúp hiện thực hóa các ý tưởng kinh doanh từ giai đoạn sơ khai đến khi vận hành thực tế. Nahaki hiểu rằng mỗi mét vuông mặt bằng đều quý giá như vàng, do đó việc sắp xếp các phân khu chức năng cần sự tính toán tỉ mỉ từ những chuyên gia giàu kinh nghiệm.

Khi khách hàng tìm đến công ty thiết kế bếp uy tín, lợi ích nhận được không chỉ là bản vẽ đẹp mắt mà là một giải pháp vận hành tổng thể. Điều này bao gồm việc tối ưu hóa luồng di chuyển của nhân viên, kiểm soát nhiệt độ môi trường và đảm bảo các tiêu chuẩn khắt khe về phòng cháy chữa cháy. Việc Setup bếp nhà hàng đúng ngay từ đầu giúp chủ đầu tư tránh được những sai lầm chết người như thiết kế thiếu công suất điện, hệ thống thoát nước bị tắc nghẽn hay tum hút mùi hoạt động kém hiệu quả.
Đối với các Mô hình bếp nhà hàng hiện đại, Nahaki luôn ưu tiên ứng dụng nguyên tắc bếp một chiều. Đây là sợi chỉ đỏ giúp ngăn chặn tình trạng nhiễm chéo vi khuẩn giữa thực phẩm sống và chín, đồng thời đáp ứng các tiêu chuẩn kiểm tra của Bộ Y Tế. Sự chuyên nghiệp của dịch vụ còn thể hiện ở việc thấu hiểu đặc thù từng phong cách ẩm thực từ bếp Á, bếp Âu đến các khu vực phục vụ tiệc buffet phức tạp.
2. Tại Sao Nên Sử Dụng Dịch Vụ Thiết Kế Trước Khi Thi Công Bếp
Nhiều chủ đầu tư thường có tâm lý muốn tiết kiệm bằng cách tự mua sắm thiết bị và sắp xếp theo cảm tính. Tuy nhiên, thực tế cho thấy chi phí sửa chữa do sai lệch công năng thường gấp 3 đến 5 lần so với việc thuê thiết kế bếp chuyên nghiệp ngay từ đầu. Dưới đây là những lý do cốt yếu mà Nahaki luôn nhấn mạnh với khách hàng:

2.1. Tối ưu hóa chi phí đầu tư thiết bị
Một chuyên gia tư vấn sẽ giúp bạn xác định chính xác số lượng và công suất thiết bị cần thiết dựa trên thực đơn và quy mô khách. Ví dụ, thay vì mua 3 bếp Á họng lớn dư thừa công suất gây lãng phí gas, Nahaki có thể tư vấn kết hợp 2 bếp Á và 1 lò nướng đa năng để đa dạng hóa món ăn mà vẫn tiết kiệm năng lượng. Việc tính toán chính xác giúp bạn tránh mua phải những thiết bị không phù hợp với không gian thực tế.
2.2. Đảm bảo quy chuẩn kỹ thuật và an toàn
Hệ thống kỹ thuật trong bếp nhà hàng bao gồm điện, nước, gas và thông gió rất phức tạp. Chỉ cần một sai sót nhỏ trong việc tính toán tiết diện dây điện hoặc công suất quạt hút mùi cũng có thể dẫn đến cháy nổ hoặc đình trệ sản xuất. Bản thiết kế chi tiết sẽ chỉ rõ vị trí đặt các van khóa gas, tủ điện tổng và hệ thống thoát nước có bể tách mỡ đạt chuẩn. Điều này giúp Thi công bếp trọn gói diễn ra nhanh chóng và chính xác tuyệt đối.
| Tiêu Chí So Sánh | Tự Sắp Xếp Bếp | Có Bản Vẽ Thiết Kế Nahaki |
|---|---|---|
| Công năng sử dụng | Hay bị chồng chéo, rối loạn khi đông khách | Khoa học, một chiều, hiệu suất cao |
| Chi phí sửa chữa | Cao, do phải đập đi xây lại hệ thống kỹ thuật | Thấp, chính xác ngay từ đầu |
| Vệ sinh ATTP | Khó kiểm soát, dễ bị phạt hành chính | Đạt chuẩn HACCP, ISO 22000 |
| Thời gian thi công | Kéo dài do vừa làm vừa sửa | Nhanh, theo đúng lộ trình bản vẽ |
3. Quy Trình Thiết Kế Bếp Nhà Hàng Tiêu Chuẩn Tại Nahaki
Để mang lại giá trị cao nhất cho khách hàng, quy trình thiết kế của Nahaki được chuẩn hóa qua 6 bước nghiêm ngặt. Mỗi bước đều có sự tham gia của các kỹ sư cơ khí, chuyên gia ẩm thực và đội ngũ kiến trúc sư nội thất. Điều này đảm bảo bản thiết kế không chỉ đúng về mặt kỹ thuật mà còn có tính thẩm mỹ và ứng dụng cao trong thực tế kinh doanh.

Bước 1: Khảo sát thực địa và tư vấn sơ bộ: Đội ngũ kỹ thuật của Nahaki sẽ đến trực tiếp mặt bằng để đo đạc thông số, kiểm tra hướng gió, nguồn điện và hệ thống cấp thoát nước hiện hữu. Tại đây, chúng tôi sẽ lắng nghe mong muốn của chủ đầu tư về Xu hướng bếp nhà hàng mà họ muốn hướng tới.
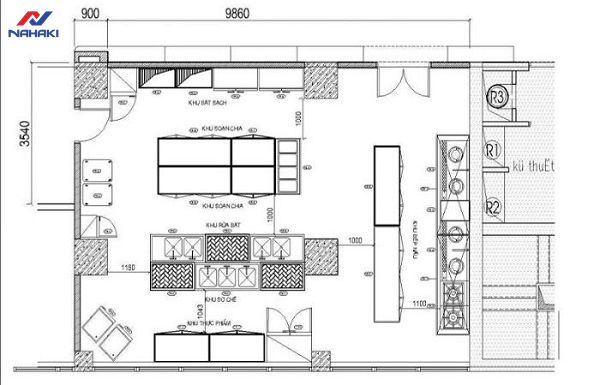
Bước 2: Phác thảo sơ đồ công năng 2D: Dựa trên dữ liệu khảo sát, các kiến trúc sư sẽ tiến hành bố trí các khu vực: Kho, Sơ chế, Nấu, Soạn chia và Rửa bát theo nguyên tắc một chiều. Đây là giai đoạn quan trọng nhất để định hình luồng di chuyển và vị trí của từng thiết bị inox chính xác đến từng milimet.
Bước 3: Dựng phối cảnh 3D chi tiết: Khách hàng sẽ được chiêm ngưỡng khu bếp tương lai của mình qua các góc nhìn trực quan. Giai đoạn này giúp bạn hình dung được màu sắc, ánh sáng và sự sắp xếp của các hệ thống tủ kệ, bếp Á, bếp Âu và trang thiết bị buffet một cách sinh động nhất.
Bước 4: Thiết kế bản vẽ kỹ thuật chi tiết (M&E): Đây là trái tim của hồ sơ thiết kế, bao gồm các bản vẽ chi tiết về đường điện, đường cấp thoát nước, hệ thống gas và sơ đồ ống hút mùi. Mọi thông số về áp suất gas, tiết diện dây dẫn điện đều được tính toán theo tiêu chuẩn an toàn quốc gia.
Bước 5: Lập bảng dự toán chi phí: Nahaki sẽ cung cấp một bảng báo giá chi tiết từng hạng mục thiết bị và vật tư thi công. Chúng tôi cam kết không phát sinh chi phí ngoài dự kiến nếu không có sự thay đổi từ phía chủ đầu tư.
Bước 6: Bàn giao hồ sơ và hướng dẫn vận hành: Toàn bộ bộ hồ sơ thiết kế sẽ được đóng tập và bàn giao cho khách hàng để phục vụ công tác giám sát thi công và nghiệm thu sau này.
4. Các Hạng Mục Chi Tiết Trong Bộ Hồ Sơ Thiết Kế Bếp
Một bộ hồ sơ tư vấn thiết kế bếp chuyên nghiệp từ Nahaki không chỉ là một vài tờ giấy vẽ sơ sài. Đó là một tập hợp các tài liệu kỹ thuật chuyên sâu giúp đơn vị thi công có thể làm việc một cách độc lập mà không cần hỏi lại chủ đầu tư. Điều này thể hiện sự minh bạch và trách nhiệm của đơn vị thiết kế đối với công trình.

4.1. Bản vẽ mặt bằng bố trí thiết bị
Bản vẽ này thể hiện rõ vị trí của các thiết bị như tủ đông, tủ mát, bàn chặt inox, chậu rửa, bếp công nghiệp. Từng thiết bị được đánh số thứ tự kèm theo chú thích về kích thước (Dài x Rộng x Cao). Việc phân khu rõ ràng giúp việc quản lý nguyên liệu và quy trình chế biến trở nên khoa học hơn bao giờ hết.

4.2. Bản vẽ hệ thống kỹ thuật chuyên dụng
Hệ thống kỹ thuật là phần quan trọng nhất trong Sơ đồ hệ thống bếp chuyên nghiệp. Nahaki cung cấp các bản vẽ riêng biệt cho từng hạng mục:
- Sơ đồ cấp điện: Chỉ rõ vị trí ổ cắm, tủ điện, các thiết bị bảo vệ (Aptomat) cho từng máy móc công suất lớn.
- Sơ đồ cấp thoát nước: Vị trí các hố thu sàn, độ dốc đường ống và điểm lắp đặt bể tách mỡ thông minh.
- Hệ thống gas trung tâm: Cách bố trí giàn bình gas, van ngắt tự động và hệ thống cảnh báo rò rỉ gas an toàn.
- Hệ thống thông gió hút mùi: Bản vẽ chi tiết tum hút, đường ống dẫn khói và quạt hút ly tâm đạt chuẩn tiếng ồn.
4.3. Danh mục thiết bị và thông số kỹ thuật (Spec)
Hạng mục này liệt kê chi tiết vật liệu cấu thành thiết bị (thường là Inox 304 cao cấp), công suất tiêu thụ điện/gas và hãng sản xuất. Đây là cơ sở để chủ đầu tư so sánh giá và kiểm soát chất lượng hàng hóa khi nhập về công trình. Nahaki luôn ưu tiên các thiết bị có độ bền cao và dễ dàng bảo trì trong điều kiện nóng ẩm của môi trường bếp.
5. Báo Giá Phí Thiết Kế Bếp Nhà Hàng Và Chính Sách Ưu Đãi
Vấn đề đơn giá thiết kế bếp luôn được các chủ đầu tư quan tâm hàng đầu. Tại Nahaki, chúng tôi áp dụng chính sách giá minh bạch, linh hoạt theo quy mô và yêu cầu cụ thể của từng dự án. Đặc biệt, chúng tôi có chính sách hoàn lại 100% phí thiết kế nếu khách hàng lựa chọn Nahaki làm đơn vị cung cấp thiết bị và thi công trọn gói.

Thông thường, phí thiết kế bếp trên thị trường dao động từ 150.000đ đến 300.000đ mỗi mét vuông tùy theo độ phức tạp. Tuy nhiên, Nahaki chia sẻ gánh nặng tài chính với chủ đầu tư bằng các gói giải pháp tối ưu. Đối với các Thiết kế bếp quán ăn nhỏ, chúng tôi có các mẫu thiết kế chuẩn giúp giảm thiểu tối đa chi phí. Với các dự án lớn như Thiết kế bếp khách sạn 3-5 sao, phí thiết kế sẽ được tính toán dựa trên khối lượng hồ sơ kỹ thuật chuyên sâu.
| Quy Mô Nhà Hàng | Đơn Giá Ước Tính (VNĐ/m2) | Chính Sách Tại Nahaki |
|---|---|---|
| Quán ăn nhỏ (< 50m2) | 150.000 – 200.000 | Hỗ trợ tư vấn miễn phí 100% |
| Nhà hàng tầm trung (50 – 150m2) | 200.000 – 250.000 | Hoàn phí thiết kế khi ký HĐ thi công |
| Bếp khách sạn / Buffet lớn (> 150m2) | 250.000 – 350.000 | Gói thầu thiết kế trọn gói chuyên sâu |
Nahaki cam kết bảo mật thông tin tài chính và phương án kinh doanh của khách hàng một cách tuyệt đối. Việc đầu tư cho một bản thiết kế chất lượng chính là cách bạn bảo hiểm cho khoản đầu tư hàng tỷ đồng của mình vào trang thiết bị và mặt bằng. Đừng để những sai sót nhỏ về kỹ thuật làm ảnh hưởng đến uy tín và lợi nhuận của nhà hàng trong tương lai.
6. Tiêu Chí Lựa Chọn Công Ty Thiết Kế Bếp Nhà Hàng Uy Tín
Việc chọn đúng đối tác đơn vị thiết kế bếp quyết định đến 80% sự thành công của khu bếp. Giữa hàng trăm công ty quảng cáo rầm rộ, chủ đầu tư cần tỉnh táo dựa trên những tiêu chí khách quan để đánh giá năng lực thực sự của đối tác. Nahaki tự tin đáp ứng đầy đủ các tiêu chuẩn khắt khe nhất của thị trường hiện nay.

6.1. Kinh nghiệm và hồ sơ năng lực thực tế
Hãy xem xét các dự án mà công ty đó đã triển khai. Một đơn vị uy tín sẽ có danh mục dự án đa dạng từ Bếp ăn khách sạn, nhà hàng tiệc cưới đến các khu công nghiệp. Kinh nghiệm thực chiến giúp các kỹ sư lường trước được những khó khăn phát sinh trong quá trình thi công và vận hành. Nahaki với hơn 10 năm kinh nghiệm đã thực hiện thành công hàng nghìn khu bếp trên khắp cả nước, từ Hà Nội đến TP. Hồ Chí Minh.
6.2. Năng lực sản xuất và thiết bị hiện đại
Sẽ là một lợi thế cực lớn nếu công ty thiết kế sở hữu nhà xưởng sản xuất trực tiếp. Điều này giúp kiểm soát chất lượng thiết bị inox đúng như bản vẽ thiết kế và đảm bảo tiến độ bàn giao. Nahaki tự hào có hệ thống nhà máy sản xuất inox công nghiệp quy mô lớn với máy cắt laser, máy chấn CNC hiện đại, giúp các sản phẩm có độ tinh xảo và bền bỉ vượt trội so với các loại hàng gia công thủ công trên thị trường.
6.3. Dịch vụ hậu mãi và bảo trì chuyên nghiệp
Khu bếp là nơi hoạt động với cường độ cao nên hỏng hóc là điều khó tránh khỏi. Một đơn vị uy tín phải có cam kết bảo hành dài hạn và có mặt hỗ trợ kỹ thuật nhanh chóng trong vòng 24 giờ. Nahaki không chỉ bàn giao bản vẽ rồi thôi, chúng tôi đồng hành cùng khách hàng suốt vòng đời của sản phẩm với dịch vụ bảo trì định kỳ chuyên nghiệp, giúp khu bếp luôn trong trạng thái vận hành tốt nhất.
7. Cam Kết Của Nahaki Về Công Năng Và Thẩm Mỹ Công Trình
Sự hài lòng của khách hàng là thước đo giá trị của Nahaki. Chúng tôi không ngừng nỗ lực để mỗi bản thiết kế đều mang dấu ấn riêng biệt, phản ánh đúng đẳng cấp của thương hiệu nhà hàng. Cam kết của chúng tôi dựa trên hai trụ cột chính: Công năng vận hành hoàn hảo và thẩm mỹ hiện đại tinh tế.
Về công năng, chúng tôi cam kết mọi thiết bị được bố trí đều có mục đích rõ ràng, tối ưu hóa từng bước di chuyển của nhân viên bếp. Hệ thống kỹ thuật do Nahaki thiết kế luôn ưu tiên tính an toàn và tiết kiệm năng lượng. Việc sử dụng các thiết bị inox 304 cao cấp không chỉ giúp việc vệ sinh trở nên dễ dàng mà còn đảm bảo môi trường bếp luôn sáng bóng, chuyên nghiệp, tạo niềm cảm hứng sáng tạo cho các đầu bếp.
Về thẩm mỹ, Nahaki luôn cập nhật những xu hướng thiết kế mới nhất trên thế giới để áp dụng vào thực tế Việt Nam. Một khu bếp đẹp không chỉ ở các thiết bị inox mà còn ở sự sắp xếp ánh sáng, màu sắc của gạch ốp tường và hệ thống tum hút mùi thiết kế tinh xảo. Chúng tôi tin rằng, một khu bếp sạch – đẹp – khoa học chính là linh hồn của nhà hàng, nơi tạo ra những món ăn tinh hoa chinh phục khách hàng.
THÔNG TIN LIÊN HỆ TƯ VẤN THIẾT KẾ
Hãy để Nahaki giúp bạn kiến tạo không gian bếp nhà hàng đẳng cấp và hiệu quả nhất hiện nay. Mọi thông tin tư vấn đều được cam kết bảo mật tuyệt đối.
NAHAKI | CÔNG TY CỔ PHẦN THIẾT BỊ INOX HƯNG VƯỢNG
🏢 Địa chỉ – Chi nhánh miền Bắc: OV4.4 KĐT Xuân Phương, P. Xuân Phương, Q. Nam Từ Liêm, TP. Hà Nội
– Chi nhánh miền Trung: Khu đô thị Sao Mai, Ngã tư phố Đà, Triệu Sơn, Thanh Hóa
– Chi nhánh TP. Hồ Chí Minh: 204/3 Tổ 1, KP 1, P. Tân Chánh Hiệp, Q. 12, TP. HCM
☎️ Điện thoại: 024.6686.1448
📞 Hotline: 098.651.9922
💬 Email: admin@NAHAKI.com.vn
🌐 Fanpage: NAHAKI – Thiết Bị Bếp Inox Công Nghiệp
Sologo : Chất Lượng Làm Nên Thương Hiệu
Hành trình xây dựng một thương hiệu ẩm thực thành công bắt đầu từ những bước đi đúng đắn trong việc thiết kế khu vực bếp. Với sự tận tâm và am hiểu sâu sắc về vận hành bếp công nghiệp, Nahaki tự tin mang đến cho quý khách hàng những giải pháp đột phá nhất. Hãy trao cho chúng tôi cơ hội được cùng bạn xây dựng nên nền tảng vững chắc cho sự nghiệp kinh doanh của mình thông qua dịch vụ thiết kế bếp nhà hàng chuyên nghiệp và đẳng cấp hàng đầu Việt Nam.
Kết thúc bài viết, Nahaki muốn gửi lời tri ân sâu sắc đến những khách hàng đã và đang tin tưởng đồng hành cùng chúng tôi. Một khu bếp hoàn hảo không chỉ nằm ở bản vẽ mà ở cái tâm của người kiến tạo. Chúng tôi luôn sẵn sàng lắng nghe và điều chỉnh để mang lại kết quả tốt nhất cho công trình của bạn. Hãy liên hệ ngay với hotline 098.651.9922 để bắt đầu hành trình kiến tạo không gian ẩm thực mơ ước của mình ngay hôm nay.
Tin tức liên quan
Chính sách xử lý khiếu nại
Chính sách xử lý khiếu nại tại nahaki.com.vn cam kết tiếp nhận và giải quyết mọi phản hồi của khách hàng về thiết bị bếp công nghiệp trong vòng...
Thiết Kế Bếp Tập Thể Quy Mô Lớn Đạt Chuẩn
Thiết kế bếp tập thể đóng vai trò cốt yếu trong việc duy trì sức khỏe người lao động và nâng cao hiệu suất doanh nghiệp hiệu quả. Nahaki...
10 mẫu quầy pha chế inox đẹp chủ kinh doanh không nên bỏ qua
Việc được đồng hành với hơn 2000 quán cafe, quán bar, quán trà sữa,… Nahaki hiểu rằng đối với đơn vị kinh doanh nước giải khát, ngoài hương vị...
Ưu điểm của tủ sấy bát đĩa công nghiệp hiện nay
Tủ sấy bát đĩa đang trở thành một thiết bị nhà bếp không thể thiếu trong những nhà hàng lớn. Nhờ có chúng mà bát đĩa luôn được khô...




